
Projet
Amir
Programme
Construction de 71 logements dont 26 logement sociaux
Ville
Nantes [44]
Année
2024
Maîtrise d'ouvrage
Cogedim pour Nantes Métropole Habitat et HAPICOOP
Missions
Complète
Surface
4 414 m² SHAB
Coût
7 700 000 € HT
Labels
E3C2 / INTAIRIEUR
Partenaires
Raphaël Gabrion (Mandataire) / IBA / Isocrate / ICTEC / Altia / Sud VRD / Lalu
Crédits images
Salem Mostefaoui / Javier Callejas / Raphaël Gabrion
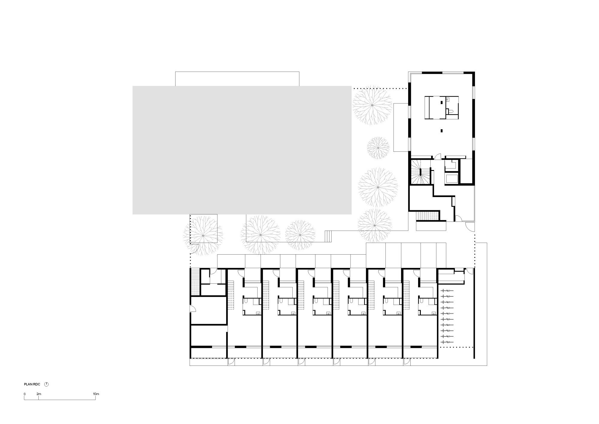
Le projet de l’îlot Amir prend place dans le premier bloc de 120 × 120 m du nouveau quartier République sur l’Île de Nantes. Il s’articule entre les Jardins de l’Estuaire qui traversera bientôt l’île jusqu’à sa proue et le futur quartier. Il se présente comme un ensemble à la fois fragmenté et unitaire autour d’un jardin intimiste.
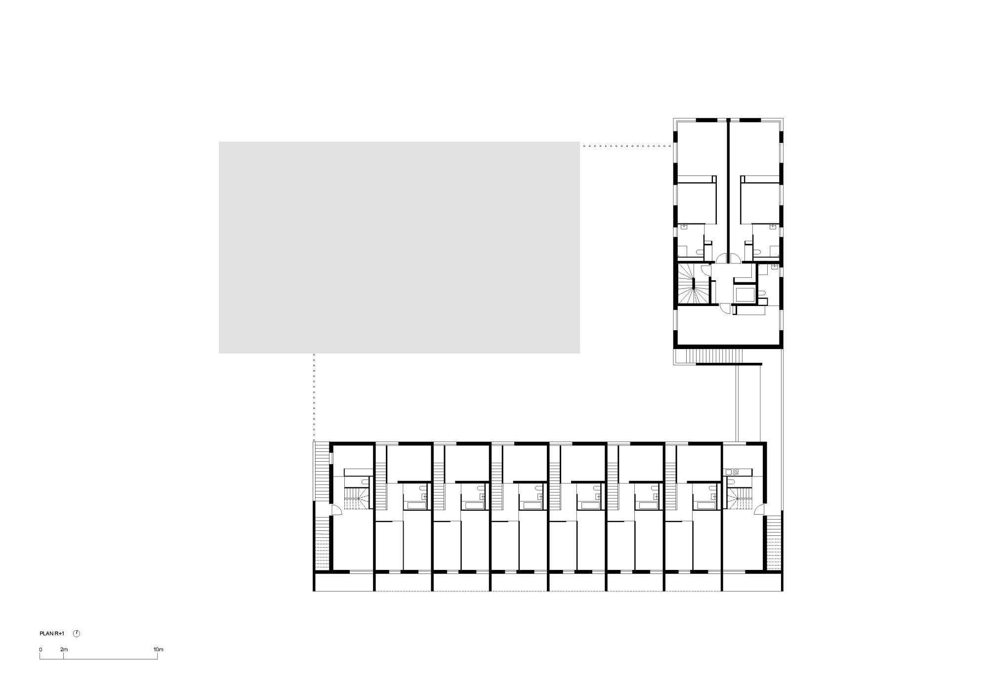
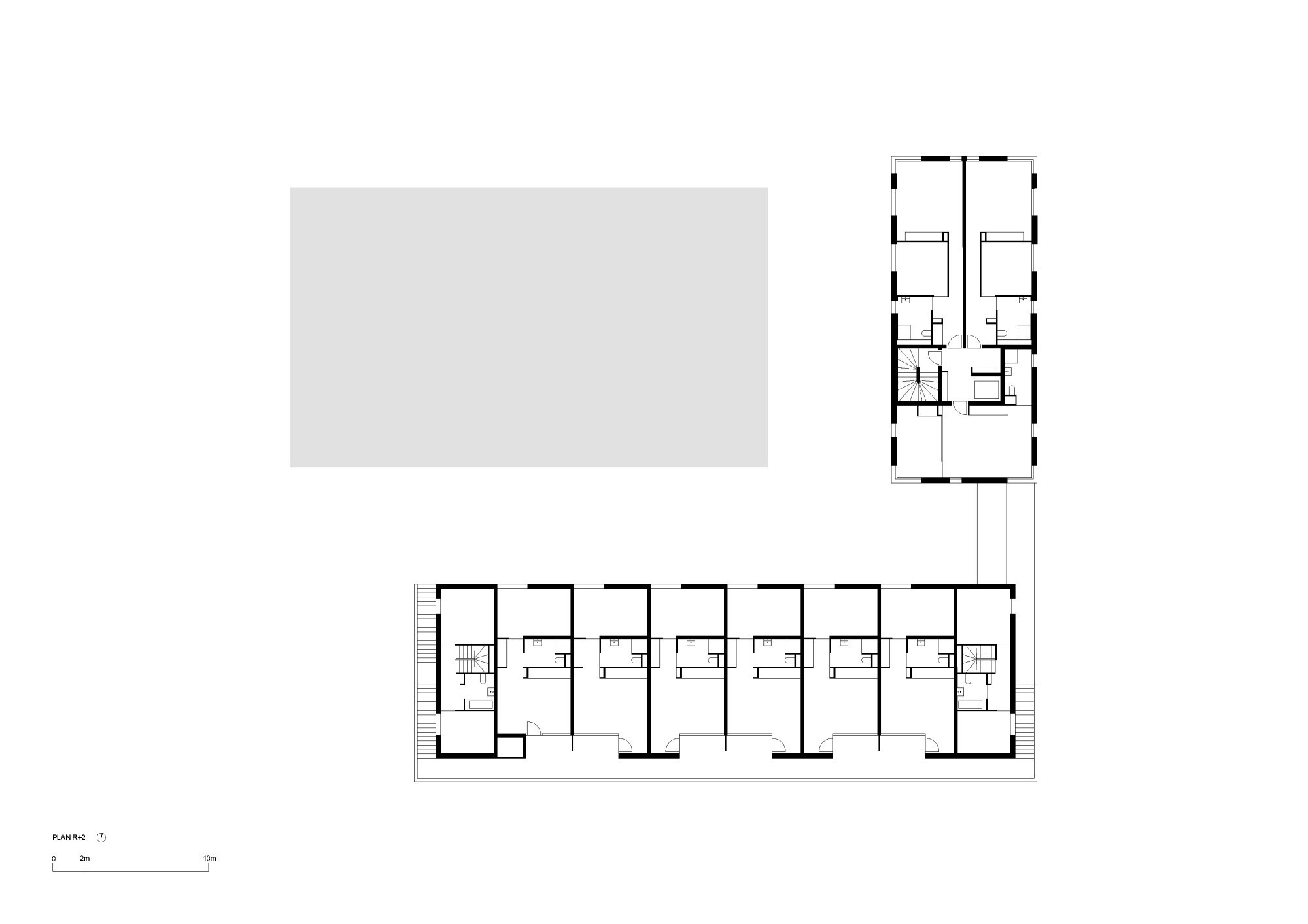
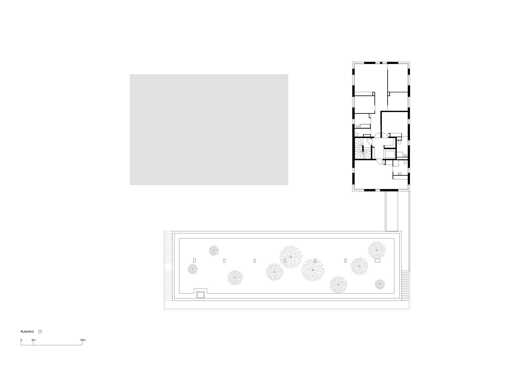
L’ensemble se décline en trois bâtiments. Le premier en R+2 est situé en cœur d’îlot, il comporte des logements intermédiaires en duplex, directement accessibles depuis le rez-de-jardin ou par une coursive à l’étage. Le second en R+4, plus collectif, intègre des logements inclusifs et s’avance sur le grand parc aux côtés du troisième, conçu par Raphaël Gabrion, très urbain et montant en gradins jusqu’au R+10. L’îlot offre ainsi une gradation d’échelles et de typologies d’habitat en structure mixte bois et béton.
Du point de vue de la matière, l’ensemble joue du contraste et de l’unité sans jamais tomber dans la neutralité : le grand « totem » apparaît comme solide. Les « satellites » (bâtiments les plus bas) sont enveloppés de façades en bois dont la patine et les nuances procurent une belle vibration dans le temps.
À chaque situation, une manière différente d’habiter : on n’habite pas de la même manière que ce soit en cœur d’îlot, en hauteur, au bord d’une place, le long d’un jardin public ou le long de la rue. Mais chaque lieu porte des qualités différentes selon les situations.
L’ensemble se décline en trois bâtiments. Le premier en R+2 est situé en cœur d’îlot, il comporte des logements intermédiaires en duplex, directement accessibles depuis le rez-de-jardin ou par une coursive à l’étage. Le second en R+4, plus collectif, intègre des logements inclusifs et s’avance sur le grand parc aux côtés du troisième, conçu par Raphaël Gabrion, très urbain et montant en gradins jusqu’au R+10. L’îlot offre ainsi une gradation d’échelles et de typologies d’habitat en structure mixte bois et béton.
Du point de vue de la matière, l’ensemble joue du contraste et de l’unité sans jamais tomber dans la neutralité : le grand « totem » apparaît comme solide. Les « satellites » (bâtiments les plus bas) sont enveloppés de façades en bois dont la patine et les nuances procurent une belle vibration dans le temps.
À chaque situation, une manière différente d’habiter : on n’habite pas de la même manière que ce soit en cœur d’îlot, en hauteur, au bord d’une place, le long d’un jardin public ou le long de la rue. Mais chaque lieu porte des qualités différentes selon les situations.
- d'infos
-
2433-1049b-bis
-
240704_Ramdam-Gabrion_AMIR_Salem_HD-36
-
240704_Ramdam-Gabrion_AMIR_Salem_HD-3
-
240704_Ramdam-Gabrion_AMIR_Salem_HD-30
-
240704_Ramdam-Gabrion_AMIR_Salem_HD-19
-
240704_Ramdam-Gabrion_AMIR_Salem_HD-23
-
240704_Ramdam-Gabrion_AMIR_Salem_HD-20
-
240704_Ramdam-Gabrion_AMIR_Salem_HD-16
-
240704_Ramdam-Gabrion_AMIR_Salem_HD-27
-
240704_Ramdam-Gabrion_AMIR_Salem_HD-15
-
240704_Ramdam-Gabrion_AMIR_Salem_HD-32

















